The Detailed Project Report (DPR) for Coimbatore’s stormwater drainage network covers 257 sq. km and aims to address waterlogging, enhance climate resilience, and achieve sustainable water management. This plan integrates advanced survey methods, CPHEEO Manual (2019) guidelines, IS codes, and a 30-year rainfall return period to ensure a robust, future-proof system.
- Survey, Mapping, and Data Collection
The foundation of this DPR lies in a comprehensive digital and field survey:
- Technology Used: Drone-based LiDAR, GPS-enabled ground surveys, and GIS mapping to capture natural drainage lines, slope variations, and critical bottlenecks.
- Digital Terrain Models (DTM): High-resolution elevation data used to simulate runoff patterns.
- Ground-Truthing: Verification of culverts, bridges, roadside drains, and water bodies for model accuracy.
- Catchment Hydrology: Sub-catchment delineation and flow paths analyzed for stormwater management planning.
- CPHEEO Manual (2019) Major Points
The Central Public Health and Environmental Engineering Organisation (CPHEEO) Manual (2019) is the key reference for this DPR:
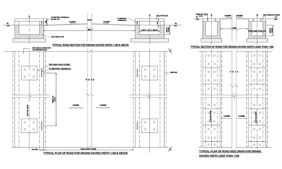
- Return Period Design: CPHEEO recommends 2–5 year return periods for minor drains and up to 30 years for critical infrastructure; this DPR adopts 30-year return periods for climate resilience.
- Minimum Velocity: Drains designed to maintain ≥0.75 m/s to prevent silting.
- Drainage Gradient: Minimum slope of 1:500 for main storm drains, adjusted as per terrain.
- Urban Integration: Provisions for rainwater harvesting, percolation pits, and green corridors to reduce load on drainage.
- Environmental Considerations: Emphasis on decentralized recharge, pollution control, and non-concrete open channels in peri-urban areas.
- Rainfall Data and IDF Curve
Rainfall patterns from IMD records (50+ years) are analyzed to develop IDF (Intensity-Duration-Frequency) curves for a 30-year return period:
- Design Intensity: Peak intensity derived for 30-year events, providing higher safety margins for extreme monsoon rainfall.
- Short Duration Events: Analysis considers 30-minute to 6-hour bursts, critical for urban flooding.
- Climate Adaptation: Projections of rainfall increase (5–15%) are incorporated to future-proof infrastructure.
- Hydraulic Design Using Storm CAD
The hydraulic network is modeled using Bentley Storm CAD:
- Calculation Method: Rational and Modified Rational Methods for urban runoff (C-values per land-use type).
- Pipe Sizing: Designed for self-cleansing velocities (as per IS 458:2003 for RCC pipes).
- Manhole Design: As per IS 4111 (Part 1 & 2) for spacing and structural stability.
- Culverts and Bridges: Design standards from IRC SP-13 are followed.
- Scenario Testing: Network tested for surcharging and ponding under 30-year storm conditions, with optimized detention basins.
- Flood Mitigation Measures
Flood-prone locations identified through GIS modeling are addressed by:
- Detention and Retention Basins: Reduce peak runoff and allow infiltration.
- Diversion Drains: Redirect excess stormwater away from vulnerable neighborhoods.
- Green Infrastructure: Bio-swales, vegetated channels, and permeable pavements to minimize runoff.
- IoT-Based Monitoring: Rain gauges and flow sensors to provide real-time flood alerts.
- Rainwater Harvesting and Recharge Systems
Innovative recharge methods convert excess stormwater into a groundwater asset:
- Rooftop Rainwater Harvesting: Mandatory for new buildings, channeling runoff to recharge pits.
- Open Wells and Ponds: Traditional water bodies revived for storage and infiltration.
- Recharge Shafts: Vertical shafts installed in low-lying zones, constructed as per IS 15797:2008 for recharge wells.
- Community Systems: Decentralized harvesting to reduce network load and promote water security.
- Key IS Codes and Standards
| Design Element | Applicable IS Code / Standard |
| RCC Pipes | IS 458:2003 – Precast Concrete Pipes |
| HDPE Pipes | IS 4984:2016 – HDPE Pipes for Water Supply |
| Manholes | IS 4111 (Part 1 & 2) – Structural Design |
| Storm Water Drainage Design | IS 1172:1993 – Code of Basic Requirements for Water |
| Recharge Shafts & Wells | IS 15797:2008 – Recharge Techniques |
| Culverts and Minor Bridges | IRC SP-13 – Design of Small Bridges |
- Sustainable Development Integration
The project supports:
- SDG 6 (Clean Water): Enhances water security via recharge systems.
- SDG 11 (Sustainable Cities): Reduces flooding and improves liveability.
- Climate Adaptation: Incorporates future rainfall trends and decentralized management.
- Community Engagement: Promotes citizen participation in rooftop harvesting and pond restoration.
This DPR delivers a comprehensive, CPHEEO-compliant, IS-standardized drainage network for Coimbatore, designed for 30-year rainfall return periods. Through advanced LiDAR surveys, Storm CAD modeling, and recharge-focused infrastructure, the plan ensures long-term resilience. The integration of traditional water bodies, modern recharge techniques, and green infrastructure creates a self-sustaining, climate-resilient stormwater management system for the city.
Our organization offers a wide range of specialized services designed to meet diverse client requirements across multiple industries. We provide end-to-end solutions including surveying services, project planning, data analysis, and consultancy support, ensuring accuracy, efficiency, and reliability at every stage. With the use of advanced technologies and industry best practices, our services are tailored to deliver high-quality results, optimize project outcomes, and support informed decision-making for our clients. Bathymetric Survey in Coimbatore | Land Survey in Coimbatore | Topographical survey in Coimbatore | Drone Survey in Coimbatore | LIDAR Survey in Coimbatore | Construction Survey in Coimbatore | Road Design Company in Coimbatore | Infrastructure Consultants in Coimbatore | Photogrammetric Survey in Coimbatore | Geophysical Survey in Coimbatore | Flood Risk Survey in Coimbatore | Project Management in Coimbatore | Geological Survey in Coimbatore | Transmission Line Survey in Coimbatore | UAV Survey in Coimbatore | Ground Penetrating Radar (GPR) Survey in Coimbatore | Traffic Survey Company in Coimbatore | Architecture Design in Coimbatore | Hydrology Study in Coimbatore | Underwater Survey in Coimbatore | Mining Drone Survey Company in Coimbatore | Landscape Design Services in Coimbatore | BIM Services in Coimbatore | Hydrographic Survey in Coimbatore | Network Survey Vehicle in Coimbatore | Structural Design in Coimbatore | Digital survey company in Coimbatore | Building design firms in Coimbatore | Water supply Design Companies in Coimbatore |



